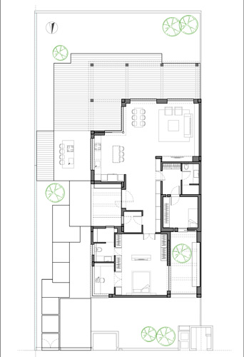
Bachar House
Location: Savion | Size: 160 m2 | Scope of work: Planning, building and interior design of a private house
A private villa located on a half acre plot, designed in modest and comfortable proportions for one person. The planning included high ceilings, internal courtyard and spaces directed at the street, yet that open onto the view beyond the backyard. The courtyard was designed as an integral part of the internal space, and includes an outdoor kitchen, seating areas and natural cement pavements that blends with the gardens.

